Espace propriétaire
fr

Votre recherche

Vendu
Caux (34720)

5 pièces - 118 m²

CAUX proche Pézenas (Languedoc, Hérault, Sud de France), Elégante villa, 5 pièces, quartier calme, résidentiel

Ref : 170
A propos de ce bien

Belle propriété clés en main - 118 m² de surface habitable - 5 pièces - 3 chambres - 4 terrasses - Piscine - Terrain 627 m²

LOCALISATION

Dans le village de CAUX, situé au coeur de l'Hérault et de ses vignobles, à 7 minutes de la ville attractive et touristique de Pézenas, 30 minutes des plages, 30 minutes de l'aéroport de Béziers et 1 heure de montpellier. Ce village de charme typique du sud de la France, à la fois calme et dynamique (nombreuses associations sportives et culturelles), très recherché de part sa situation idéale, offre un environnement de vie agréable et des commerces de proximité (restaurants, boulangerie, épicerie, boucherie, pharmacie, bureau de tabac, coiffeurs, bureau de poste...)

LES PRINCIPAUX ATOUTS DE CETTE PROPRIETE :

  • Construction récente (2012)
  • Située en bordure de village dans un quartier calme et résidentiel
  • Pas de travaux à prévoir, la maison est prête à emménager
  • Lumineuse et spacieuse avec une disposition contemporaine et en demi-niveaux
  • Un grand espace de vie ouvert et lumineux
  • Un beau jardin paysager facile à entretenir
  • 4 terrasses avec plusieurs expositions permettant de profiter de l'extérieur à tous moments de la journée
  • Une pièce en sous-sol de 20 m² offrant des possibilités de stockage, une cave ou une autre utilisation.
CARACTERISTIQUES DE LA PROPRIETE :

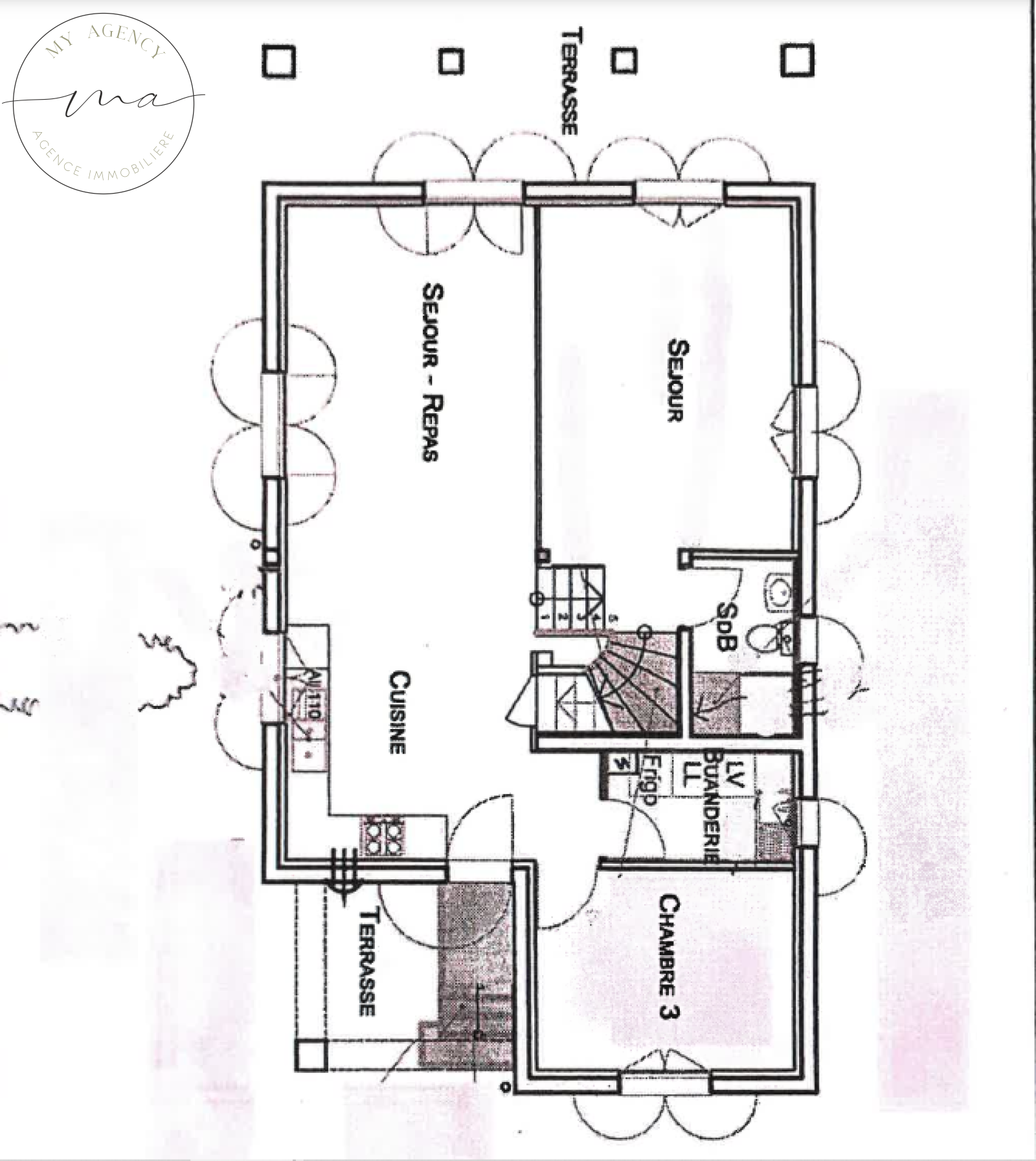
Rez-de-chaussée :
  • Une première terrasse couverte et accueillante
  • Une entrée directe dans un espace de vie spacieux et lumineux de 48 m² comprenant une cuisine ouverte, une salle à manger et un beau salon en demi-niveau
  • Une première chambre lumineuse
  • Un pièce à usage de buanderie et de stockage
  • Une salle d'eau lumineuse avec WC
  • Un accès à une pièce en sous-sol de 20 m² pouvant servir de cave, d'un espace de stockage ou autre
  • Une seconde terrasse couverte
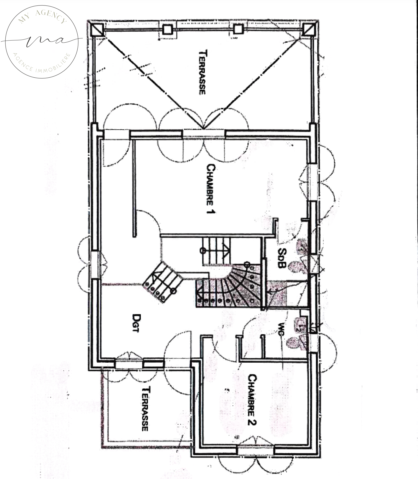
Etage :
  • Une seconde chambre lumineuse
  • Un WC indépendant
  • Un palier spacieux dont l'espace pourrait être utilisé pour y installer un bureau, avec un accès sur une belle terrasse
  • Une superbe chambre parentale avec salle d'eau et WC privatifs ainsi qu'un accès direct à une splendide terrasse couverte de 25 m² offrant une belle vue panoramique splendide.
L'EXTERIEUR :
  • Une très belle piscine de 5 x 3 m vient compléter le charme de cette propriété
  • Un beau jardin arboré, spacieux et calme avec un entretien facile.

EN CONCLUSION :

Idéalement située près de Pézenas, au coeur d'un village dynamique et recherché avec commerces, cette superbe propriété, prête à emménager, est idéale comme résidence principale ou maison de vacances. Cette propriété en plus de son style original et unique, son l'emplacement calme et résidentiel, présente de nombreux atouts pour vous offrir un excellent confort de vie.

Vidéo disponible après premier contact.

Comme pour toutes les visites, une pièce d'identité sera requise (article L. 561-5 du Code Monétaire et Financier français).


Prix : 355 000 € TTC frais d'agence inclus, (frais d'agence à la charge du vendeur).
Taxes foncières : 1 390 €
Performance énergétique : Diagnostic énergétique effectué le 19/03/2024 / DPE classé : C – GES classé : A

Les informations sur les risques auxquels cette propriété est exposée sont disponibles sur le site Géorisques : www.georisques.gouv.fr
Annonce rédigée par Franck BRASSEUR, conseiller immobilier indépendant avec MY AGENCY (https://m-y-agency.fr) et enregistré au registre du commerce de Béziers sous le numéro RSAC : 947867610


Les informations sur les risques auxquels ce bien est exposé sont disponibles sur le site Géorisques
Descriptif de ce bien
Général
Code postal 34720
surface terrain 624 m²
Nombre de chambre(s) 3
Nombre de pièces 5
Nombre de niveaux 1
Vue JARDIN
Détails
Nb de salle d'eau 2
Cuisine Américaine
Type de cuisine Equipée
Mode de chauffage Electrique
Type de chauffage Radiateur
Format de chauffage Individuel
Interphone NON
Visiophone NON
Loggia NON
Terrasse OUI
Sous/sol AVEC
Nombre de parking 1
Exposition Nord-Ouest
Année de construction 2012
Terrain arboré OUI
Composition
Rez de chaussée
salle d'eau 3.5 m²

terrasse 25 m²

cuisine

buanderie 3.8 m²

sejour 31 m²

salon 17 m²

piscine 16 m²

chambre 9.8 m²

terrasse 4 m²

Etage 1
WC 2 m²

chambre 9.8 m²

chambre 17.4 m²

salle d'eau 3.9 m²

palier 12 m²

terrasse 25 m²

terrasse 6 m²

Etage -1
Sous sol 20.5 m²

Financier
Les honoraires d'agence seront intégralement à la charge du vendeur  
Taxe foncière annuelle 1 390 €
Taxe d'habitation 1 145 €
Energie
DPE GES
Autour du bien
  • Commerces et santé
  • Loisirs
  • Ecoles
  • Transports
  • Pratique
Contacter pour ce bien
L'agence
Téléphone 06 71 43 88 34
Adresse
122 Boulevard de la République 34350 Valras-Plage

* Champ obligatoire

Les informations recueillies sur ce formulaire sont enregistrées dans un fichier informatisé par La Boite Immo agissant comme Sous-traitant du traitement pour la gestion de la clientèle/prospects de l'Agence / du Réseau qui reste Responsable du Traitement de vos Données personnelles. La base légale du traitement repose sur l'intérêt légitime de l'Agence / du Réseau. Elles sont conservées jusqu'à demande de suppression et sont destinées à l'Agence / au Réseau. Conformément à la loi « informatique et libertés », vous disposez des droits d’accès, de rectification, d’effacement, d’opposition, de limitation et de portabilité de vos données. Vous pouvez retirer votre consentement à tout moment en contactant directement l’Agence / Le Réseau. Consultez le site https://cnil.fr/fr pour plus d’informations sur vos droits. Si vous estimez, après avoir contacté l'Agence / le Réseau, que vos droits « Informatique et Libertés » ne sont pas respectés, vous pouvez adresser une réclamation à la CNIL. Nous vous informons de l’existence de la liste d'opposition au démarchage téléphonique « Bloctel », sur laquelle vous pouvez vous inscrire ici : https://www.bloctel.gouv.fr Dans le cadre de la protection des Données personnelles, nous vous invitons à ne pas inscrire de Données sensibles dans le champ de saisie libre.
Ce site est protégé par reCAPTCHA, les Politiques de Confidentialité et les Conditions d'Utilisation de Google s'appliquent.

Découvrir nos outils